+998-78-113-62-18
Телефон для связи:
Электронная почта:

пн.-пт. с 9:00 до 18:00

Стальной фильтр масла и топлива В Гиссаре

Показано 27 из 27 товаров в разделе Стальной фильтр масла и топлива

Стальной фильтр масла и топлива - это промышленное оборудование, которое применяют для решения широкого круга производственных задач. Оборудование этого типа используется в металлургии, машиностроении, строительстве, ремонтных и сервисных подразделениях. Стальной фильтр масла и топлива отличаются надежностью, длительным сроком службы и стабильными характеристиками при интенсивной эксплуатации.

Перезвоним за 15 минут

Менеджер отдела продаж

Сергей

Менеджер отдела продаж

Фильтры
Сбросить
Фильтры
По умолчанию
* Уважаемые заказчики! Актуальная цена формируется исходя из: объема поставки, формы оплаты и удаленности от заказчика места отгрузки. Информация в каталоге о цене и наличии носит информационный характер и не является публичной офертой, определяемой положениями ч. 2 ст. 437 Гражданского кодекса РФ. Цены уточняйте по телефонам наших офисов в г. Гиссар

Наши преимущества

advantage
Полный цикл сделки
Подберём, укомплектуем и доставим заказ по одной заявке
advantage
Широкий ассортимент
Ходовые товары отгружаем из наличия и под заказ поставляем редкие товары. Весь сортамент сертифицирован
advantage
Гибкие условия сотрудничества
Отсрочки платежей и скидки для постоянных клиентов. Нетиповые заказы и индивидуальные решения — наш конёк
advantage
Обрабатываем и производим на заказ
Тратьте меньше на обработку и логистику, изготавливаем и обрабатываем заготовки в собственных цехах

Наши менеджеры ответят
на все вопросы и помогут быстро
оформить заказ

Вы можете воспользоваться формой обратной связи, приложить документ, изображение чертежей или воспользоваться удобным для вас мессенджером:

Описание

Для работы двигателей внутреннего сгорания, качественного функционирования системы смазки используют унифицированное стальное устройство - фильтр для масла и топлива. При помощи детали обеспечивается нормальная работа двигателя и смазка каждой трущейся детали: подшипников коленвала - коренных и шатунных, ГРМ запчастей, поршневых колец и т.д. Стальным устройством, очищающим масла и топливо от механических загрязнений, нагара, способным задерживать до 95 процентов частиц, размер которых от 25-45 микрометров, называют фильтр масла и топлива. Такая небольшая часть системы для смазки двигателя, проводит глобальную очистку масла в насосе, фильтрует твердые частицы и отложения, не дает накапливаться в поддоне картера.

Технические характеристики

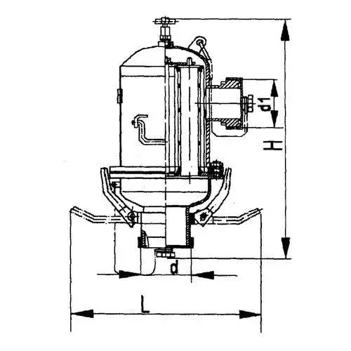
Основные элементы:

  • Корпус, выполненный из стали или сплавов стали. Устройство самого корпуса простое: стальная чаша, имеющая грани под ключ, расположенная на тыльной поверхности; передняя крышка, имеющая монтажную резьбу и отверстия; уплотнительная резинка
  • Фильтрующий элемент из бумаги или картона
  • Клапаны: перепускной (сбрасывает избыточное давление в аварийных ситуациях) и противодренажный (после остановки двигателя удерживает масляный столб в заборной магистрали)

Принцип работы

Смазка под давлением поступает в полость корпуса. Фильтрующий элемент из картона не пропускает мелкодисперсные частицы до 3 мкм.  Пропускная способность и объем фильтра - основные показатели быстроты и эффективности очистки фильтром. В зависимости от конструкции и схемы монтажа есть 3-и вида устройств:

  • Проточный или полнопоточный
  • Частично проточный или частичнопоточный
  • Фильтр с комбинированной схемой фильтрации

Фильтры бывают: одноразовые (с неразборной конструкцией) и разборные (фильтрующий элемент с заменой).

Применение

На практике зарекомендовали себя в легковых и грузовых автомобилях, тяжелой узкоспециализированной технике и т.д. Могут эксплуатироваться в сложных условиях, включая применение некачественного топлива или масла, позволяя сократить интервал замены сна 30%.

Мы используем файлы cookie
Подробнее